HomePast ProjectsProject ApproachFeesPrimary School ProjectsContact
 
 
 



















 

 

House refurbishment & Basement conversion
 
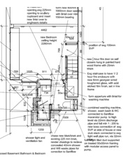
Brief - The original building space including a basement kitchen which was to be converted into a new bedroom. At first ground floor an existing chimney stack to be removed and a new galley kitchen to be fitted. In the reception room the original Victorian fire surround was to be retained with interior treatment enhanced by   new plaster cornice, new ogee skirting’s, architraves brass fixtures.
 
 Scheme Design - During structural investigation an external concealed Victorian coal shed was uncovered. It was therefore decided to increase the potential basement floor space by excavating and enlarging  to form a small utility space, a shower room and toilet to provide en-suite facility to the new bedroom. The space was made usable by complete tanking techniques to walls and floors. Natural light/ventilation was introduced by new windows opening onto the exg basement paved courtyard.
 
Scope of Work - Produce fully detailed CAD drawings for submission of full planning and building control applications, with detailed specifications, cost spread sheets and outline programme. On successful receipt of local authority approvals project management, cost reporting and supervise the building works through to completion.
 

 
     
 
© 2011 Space Design

Website