|
|

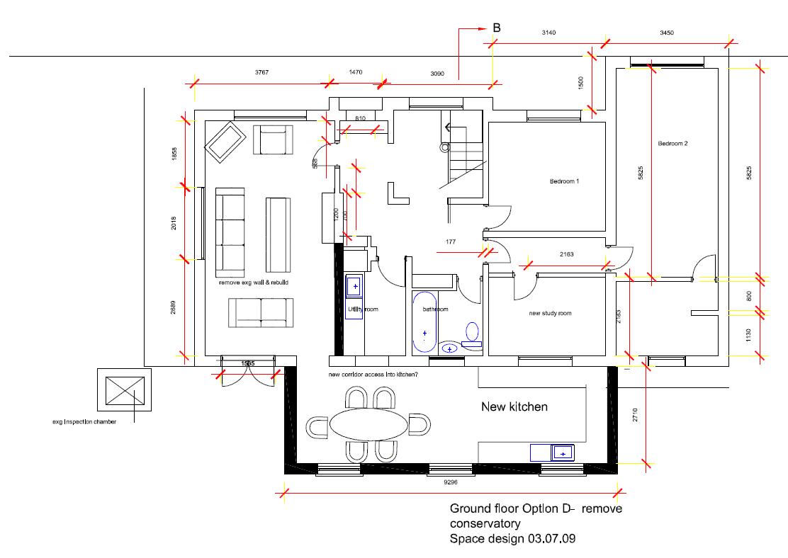
Roof & Ground floor extensions - Dorset, UK
Brief - The client’s requirement was to provide planning options for the extension of the existing roof loft space, to form a dormer roof extension to include two bedrooms with shared shower room. The ground floor works required the dismantling of an existing conservatory to build a new kitchen diner extension.
Scheme Design – Provide various schemes illustrating how the roof of the new extended loft space could be integrated into the general rear elevation and the new ground floor extension.
The final scheme selection was driven by a budget /programme cost evaluation process of the various feasibility plan layouts illustrated by sketch 3d visuals.
Scope of work – Produce fully detailed CAD drawings for submission of full planning and building control applications, with detailed specifications, cost spread sheets and outline programme.
On successful receipt of local authority approvals the client appointed a recommended local builder and carried out his own project management and supervision of the building works through to completion.
|
|